《装饰材料与施工工艺》课程是环境艺术设计专业学生的必修课,建筑装饰材料与其施工材料是具有实践性的一门课,知识点的掌握程度直接关系到此课题的实践操作。隋燕、邵常琳两位老师此课程在教学过程中关注在高科技,高技术下的时代,建筑装饰材料的发展日新月异,新材料不断问世,新的施工方法及其装饰工艺,在教学中不断更新教学知识的新鲜性。
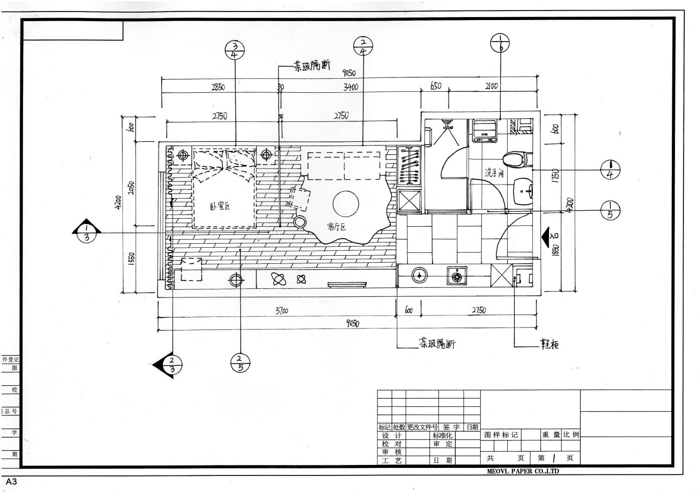
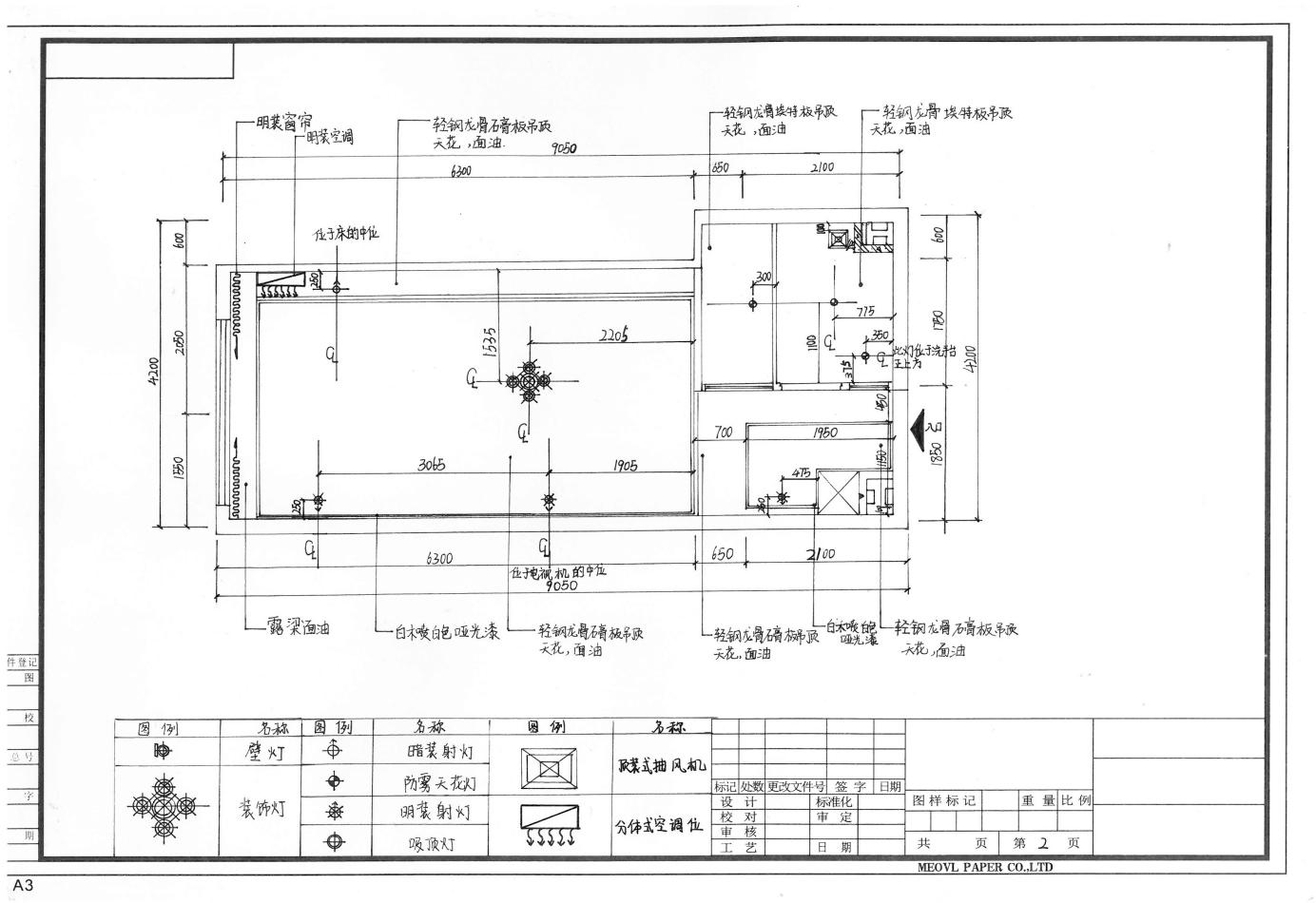
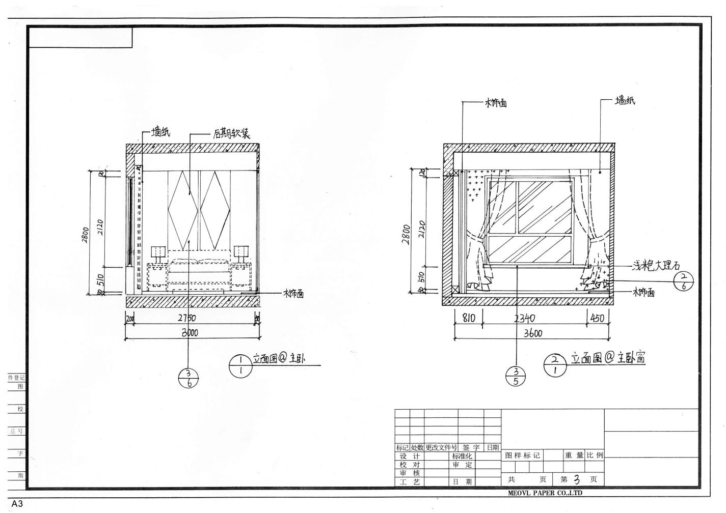
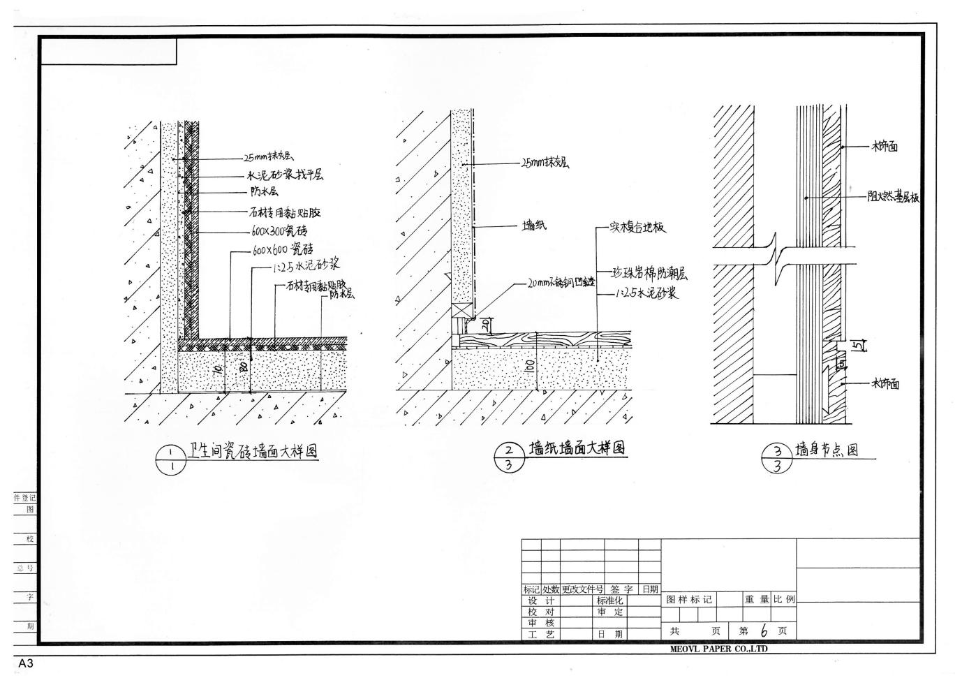
要求学生熟悉各种装饰材料的性能、特点,按照建筑物及使用环境条件,合理选用装饰材料,才能材尽其能、物尽其用,更好地表达设计意图,并与室内其他配套产品来体现建筑装饰性。
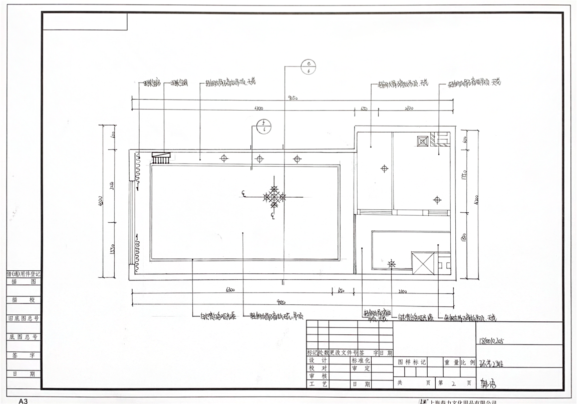
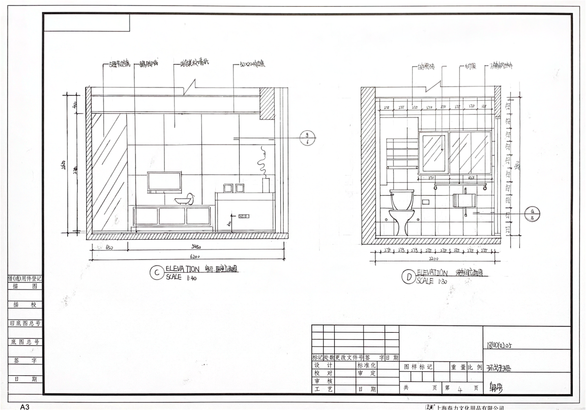
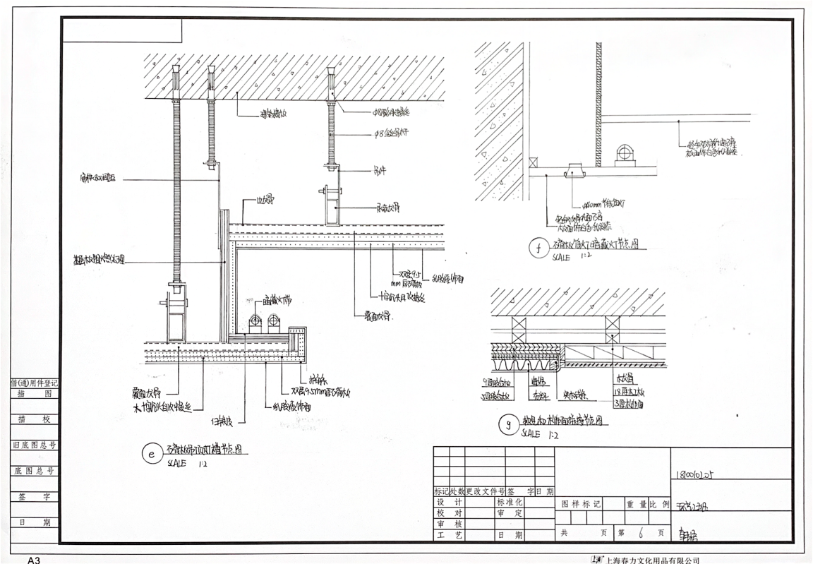
在课程学习过程中,同学们从对材料的一知半解,到后期可以完整系统的材料种类认知,以及对材料相关施工工艺的掌握,同学们对课程的学习始终保持着极大的热情,并最终能够充分掌握材料及其施工工艺和节点大样图的绘制。(指导教师 隋燕、邵常琳)












